
Agence Place du Miroir (Jette)
Maître de l’Ouvrage : Union et Solidarité Socialistes du Brabant
Marchés privés
Rénovations et réaménagements d’agences dans des bâtiments existants à Bruxelles
Années construction : mars 2024-février 2025

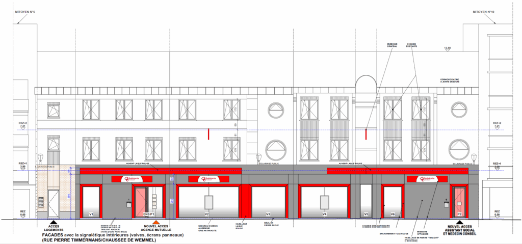
Agence Place du Miroir (Jette)
Maître de l’Ouvrage : Union et Solidarité Socialistes du Brabant
Marchés privés
Rénovations et réaménagements d’agences dans des bâtiments existants à Bruxelles
Années construction : mars 2024-février 2025






